一、產(chan)品簡介
LKCYDK102智能數字壓力開關是集壓(ya)力(li)測(ce)量,顯(xian)示(shi),輸(shu)出,控(kong)(kong)(kong)制于一體的壓(ya)力(li)測(ce)控(kong)(kong)(kong)產(chan)品(pin)(pin)。該(gai)產(chan)品(pin)(pin)為全電子結構(gou),前端采用(yong)隔離膜(mo)充油(you)壓(ya)阻式(shi)壓(ya)力(li)傳感器,輸(shu)出信號(hao)(hao)由高精(jing)度,低溫漂(piao)的放大器放大處(chu)(chu)理(li),高精(jing)度的 A/D 轉換器,轉換成微處(chu)(chu)理(li)器可以(yi)處(chu)(chu)理(li)的數字(zi)信號(hao)(hao),經(jing)過運(yun)算處(chu)(chu)理(li)的信號(hao)(hao)控(kong)(kong)(kong)制兩路開(kai)關,對控(kong)(kong)(kong)制系統壓(ya)力(li)進行測(ce)控(kong)(kong)(kong)。該(gai)智(zhi)能數字(zi)壓(ya)力(li)開(kai)關使用(yong)靈(ling)活,操作(zuo)簡單,調試容(rong)易,安全可靠(kao)。廣泛應(ying)用(yong)于水(shui)(shui)電,自來水(shui)(shui),石油(you),化工(gong),機械,液壓(ya)等行業(ye),對流體介質(zhi)的壓(ya)力(li)進行測(ce)量、顯(xian)示(shi)和控(kong)(kong)(kong)制。
二、技術性能(neng)
量 程 范 圍(wei) |
0~5、20、100……1000KPa |
0~2、20、40……60MPa |
|
測 量 介(jie) 質 |
與 316L不(bu)銹鋼(gang)兼容的各(ge)種氣(qi)體、液體 |
供 電 電 壓 |
24VDC |
顯 示 方 式 |
4位數碼管 |
顯 示 范 圍 |
-1999~9999 |
控 制 精 度 |
≦± 0.5%FS |
顯 示 精 度 |
± 0.1%FS |
長 期(qi) 穩 定 性 |
≤±0.2%F.S/年 |
介 質 溫 度 |
- 20~+85℃ |
環 境(jing) 溫 度 |
- 30~+70℃ |
相(xiang) 對 濕 度 |
0~80% |
響 應 時 間 |
≤1ms |
最(zui) 大 功 耗 |
< 3W |
開(kai) 關 壽 命 |
> 100萬次 |
膜 片 材 料(liao) |
316L不銹鋼 |
殼 體 材(cai) 料(liao) |
1Cr18Ni9Ti |
壓 力(li) 接(jie) 口 |
外螺紋 G1/4或用戶自定 |
引 線 方 式 |
五芯航插 |
防 護 等 級 |
IP65 |
三(san)、產品特點
1 、 4 位(wei)數(shu)字顯示當(dang)前壓力值
2 、模擬量輸(shu)出( 4~20mA )
3 、開(kai)關量(liang)可在(zai)零點到滿意(yi)度之(zhi)間任意(yi)設定
4 、外(wai)殼設有節點動作發光(guang)二(er)極(ji)管(guan),便于觀(guan)察(cha)
5 、按鍵調校及現場設置各種參數,操(cao)作方便(bian)
6 、 2 路開關量輸出,帶(dai)載能力 1.2A
7 、壓力預設(she)開(kai)關點和延滯切換輸出
四、安裝
4.1 機(ji)械安裝:
智能數字壓力開關CYDK102 可以通(tong)(tong)過(guo)壓(ya)力管(guan)(guan)接頭(外螺(luo)紋 G1/4 )(其他尺寸接頭可以在(zai)訂貨(huo)時說明),直接裝在(zai)液壓(ya)管(guan)(guan)路上。在(zai)關(guan)鍵應用場合(如劇(ju)烈震動或沖擊),壓(ya)力管(guan)(guan)接頭可以通(tong)(tong)過(guo)微型(xing)軟管(guan)(guan)進行(xing)機械解耦。
4.2 電(dian)氣連接:
1 紅:電源 + 2 黃:電源 -
3 藍:開關 1 4 綠:開關 2
5 棕: 4~20mA
為了防止電磁干(gan)擾的(de)影(ying)響應注意以下事項:
• 線(xian)路連(lian)接(jie)盡量(liang)短
• 采用屏蔽線
• 盡量避免直接(jie)接(jie)近引(yin)起干擾的(de)用戶裝置(zhi)或電器和電子裝置(zhi)的(de)接(jie)線(xian)
• 若用(yong)微型軟管安裝(zhuang),殼體必須單獨(du)接地(di)
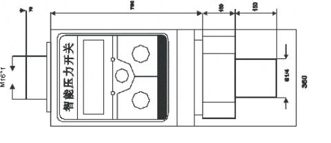
五、外形尺寸 (單位: mm )
版權所有 Copyright(©)2009-2011 江蘇力科儀表有限公司
電話號碼:0517-86909222 商務熱線:15305232668 傳真:0517-86909221
地址:江蘇省金湖縣工業園
技術支持: